Home Our Basis Sample Plan Our Family Submit Review House Plans Price Contact Reviews About Purchase-Info

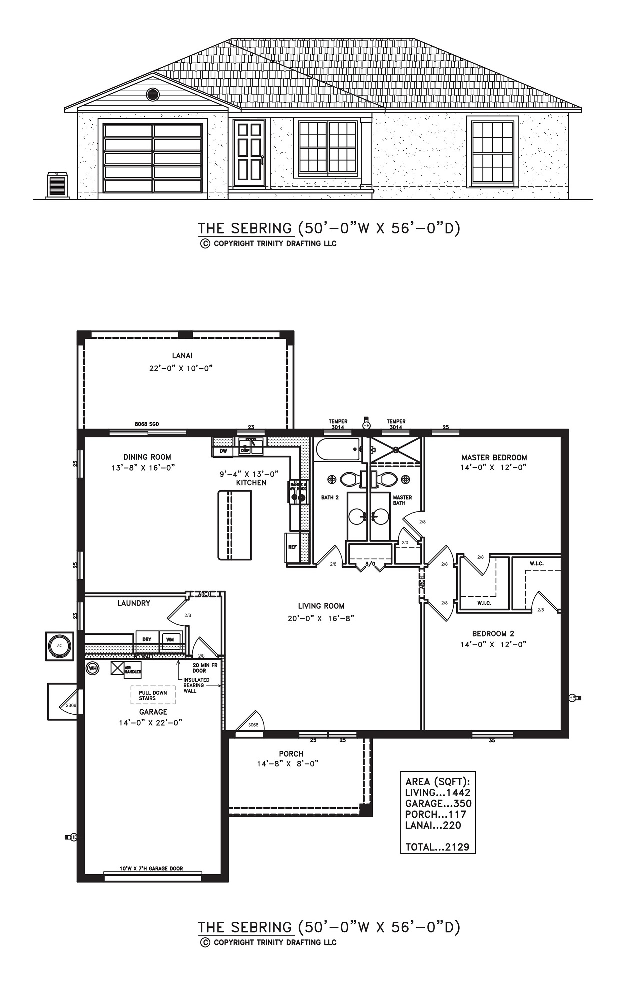
The Sebring

The Sarasota - (Jody Willis Builder, Inc.)

 

PREVIOUS PLAN

NEXT PLAN

PRICE FOR THIS PLAN PDF OF THIS PLAN

 

 

 

Jody Willis
Trinity Drafting
813.482.2463
mail@trinitydrafting.com